
Ogłoszono przetarg na sprzedaż działek budowlanych w Łupawie
Do sprzedaży przeznaczono następujące nieruchomości:
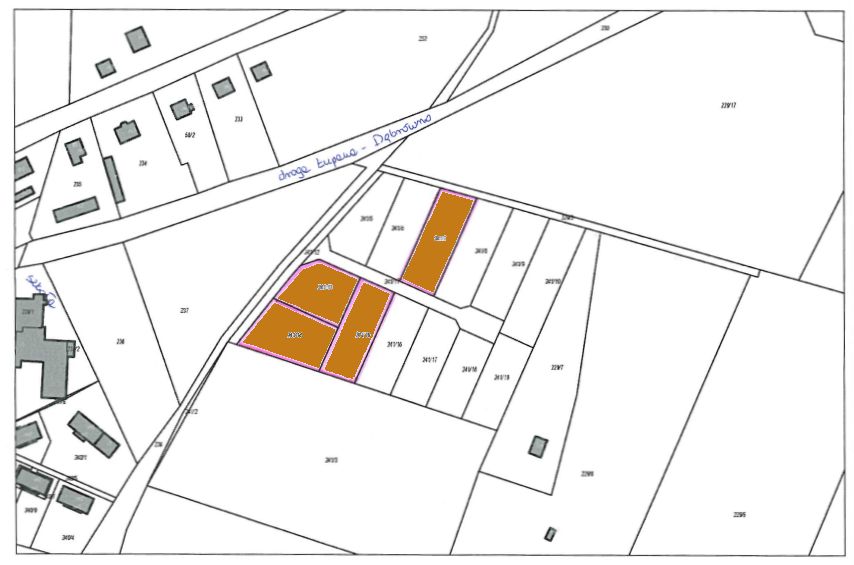
Działka nr 241/7 obręb Łupawa o pow. 0,1625 ha, cena wywoławcza - 25.000,00 zł + podatek VAT 23%
Działka nr 241/15 obręb Łupawa o pow. 0,1562 ha, cena wywoławcza - 24.000,00 zł + podatek VAT 23%
Działka nr 241/13 obręb Łupawa o pow. 0,1420 ha, cena wywoławcza - 23.000,00 zł + podatek VAT 23%
Działka nr 241/14 obręb Łupawa o pow. 0,1704 ha, cena wywoławcza - 27.000,00 zł + podatek VAT 23%
Pełna treść ogłoszenia o przetargu została zamieszczona w Biuletynie Informacji Publicznej w zakładce Przetargi nieruchomości rok 2017, na tablicy ogłoszeń w Urzędzie Gminy oraz na tablicach ogłoszeń w sołectwach.
Na działki w Łupawie została wydania decyzja o warunkach zabudowy pod budownictwo mieszkaniowe jednorodzinne wraz z garażami. Działki są uzbrojone w sieć kanalizacji wodociągowej i kanalizacyjnej oraz posiadają dostęp do drogi publicznej Łupawa – Dąbrówno. Atrakcyjności działkom dodaje również ich doskonała lokalizacja. Działki położone są w pięknym i malowniczym zakątku Łupawy, co gwarantuje ciszę i spokój, a w ich okolicy znajduje się także las, do którego można wybrać się na rodzinny spacer. Jednocześnie w niedalekiej odległości znajduje się szkoła, przedszkole, poczta, kościół, ośrodek zdrowia oraz sklepy, w których można robić codzienne zakupy.
Dodatkowych informacji można uzyskać w Urzędzie Gminy pok. nr 23 lub pod nr tel. 598454986.
Serdecznie zapraszamy do obejrzenia nieruchomości i przystąpienia do przetargu.
Naprawdę warto zamieszkać w Łupawie.